喜茶深圳卓悦中心店空间设计
发布者:全力设计 来源:全力设计 发布时间:2020-03-04
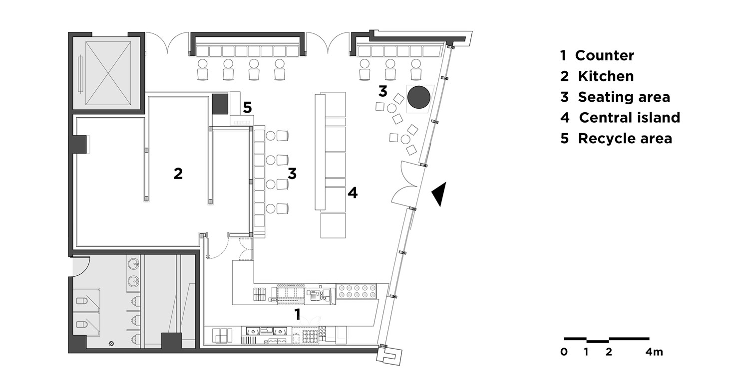
本店位于深圳福田CBD综合体商圈One Avenue卓悦中心,秉承商场探索,创新,活力的精神, MOC DESIGN以“攀登”为寓指,以台阶形态为媒介,将追求进步、勇于攀登的态度融于设计进行延展,通过拆分重组的手法结合空间框架及功能进行设计,用简洁的体块、充满变化的组合贯穿于空间。

错落有致的体块,自上而下延伸至整个空间.设计构想来源于《纪念碑谷》中纵横交错的空间形态,以打散重组在空间中的台阶做为概念的表现形式,错落有致的体块结合台阶形态,自上而下延伸至整个空间。在材质及造型上,为缓解小空间固有的压迫感,使用白色基调和方正的体块拓展空间界面。

中岛区域的高桌组合装置做为空间的主角,摆列形式仿佛在尽然有序地诉说。实体和线框的台阶造型构成虚实结合的姿态,游走在天花纵横交错的台阶与整体空间体块之间,在空间整体纯白色调的渲染下,成为空间中的视觉焦点。台阶造型的分布,既可陈列品牌周边文化产品,也满足动线的划分,同时达到小憩饮茶的功能需求,人群的交流由此密切展开。

茶具以传统的陶土为器身,壶盖则以透明亚克力制成,底部台阶状的形式便于固定于墙面.设计师将空间的功能区域如自助台等隐藏于纵横台阶之间,并为品牌方特别设计定制了一款茶具用于向顾客展示其采自不同产地的茶叶。





深圳品牌设计公司 | 深圳VI设计公司 | 深圳画册设计公司 | 深圳logo设计公司 | 深圳商标设计公司 | 深圳标志设计公司
声明:文章及图片来自网络,并不用于任何商业目的,仅供学习参考之用;版权归原作者所有。如涉及作品内容、版权和其他问题,请立即与我们联系,我们将在第一时间删除内容!